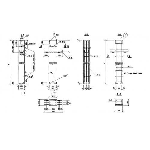
Колонна железобетонная КЛм 420 изготовлена из высококачественного железобетона, что обеспечивает ей прочность и долговечность. Она предназначена для использования в строительстве зданий и сооружений. Колонна имеет стандартные размеры и габариты, что упрощает ее монтаж и установку. Благодаря специальной форме и конструкции, она обладает высокой устойчивостью к нагрузкам и вибрациям, что делает ее идеальным выбором для строительства.
Колонна железобетонная КЛм 420 применяется в строительстве различных объектов, таких как жилые дома, офисные здания, промышленные сооружения и другие. Она может использоваться как опора для перекрытий, а также для создания несущих конструкций. Благодаря своей прочности и надежности, данная колонна идеально подходит для строительства объектов любого назначения и обеспечивает им долговечность и устойчивость.









