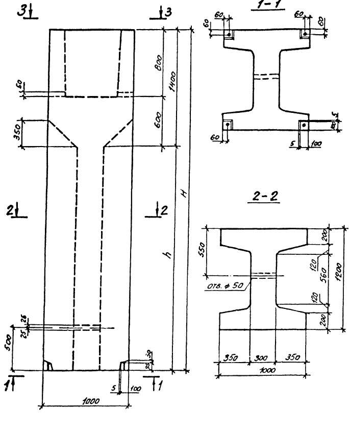
Блок-стакан верхний ВБ 9-12-48-2 предназначен для использования в строительстве железобетонных конструкций. Он обеспечивает надежное соединение элементов и обеспечивает устойчивость и прочность всей конструкции. Блок-стакан верхний ВБ 9-12-48-2 имеет высокую прочность и долговечность, что делает его идеальным выбором для строительства зданий и сооружений.









