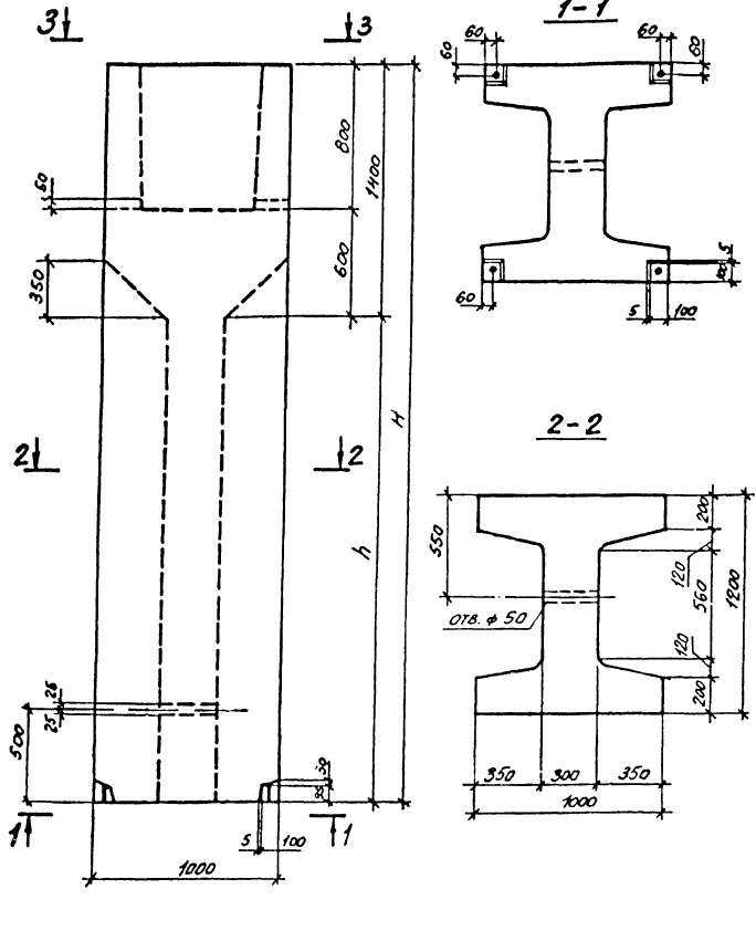
Блок-стакан верхний ВБ 10-12-42-2 представляет собой элемент железо-бетонных конструкций, используемых в строительстве. Он имеет специальную форму, которая обеспечивает прочное соединение с другими блоками-стаканами и создает устойчивую конструкцию.
Блок-стакан верхний ВБ 10-12-42-2 применяется в строительстве зданий и сооружений, где требуется использование железо-бетонных конструкций. Он может использоваться как в жилом, так и в коммерческом строительстве для создания несущих стен, перекрытий и других элементов зданий.









